На главнуюКонтактная информацияПоискКарта сайта

Личный кабинет:

  •      Режим работы:
  •      Пн-Пт 9.00 – 18.00.
  •      Выходные: Сб-Вс, праздничные дни.
Фирменный интернет-магазин buderus-minsk.by делает оборудование Buderus еще доступнее для Вас!
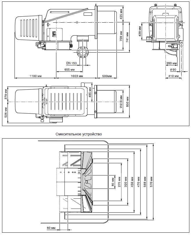
Горелка комбинированная Weishaupt WKG 80/6-A DN 100 ZMH-VSF

Горелка комбинированная Weishaupt WKG 80/6-A DN 100 ZMH-VSF

  • Артикул: 27786716
  • Производитель: Weishaupt
  • Страна происхождения: Германия

- тепловая мощность 9600 - 22000 кВт;
- плавно-ступенчатая или модулируемая, топливо - газ природный/ сжиженный, жидкое топливо

  • цена по запросу

Диапазон работы в кВт9600 - 22000
Расход топлива кг/час                         -
Мощность котла, КПД=92%  в кВт-
Напряжение, В                       400                     
Номинальная мощность электродвигателя в кВт -
Режим работы плавно-ступенчатое или
 модулируемое регулирование 
Прибор зажигания W-ZG 02
Блок управления (менеджер горения)W-FM 100/200
Потребление тока старт. max/экспл.-









Расшифровка обозначений

WK - Регулируемая промышленная горелка
G - топливо газ
L - жидкое топливо EL
80 - Типоразмер
/3 - класс мощности
-A - тип конструкции
ZM - модулируемый режим работы
H - с подачей горячего воздуха
NR - сниженные выбросы NOx (при работе на газе)
VSF - смесительное устройство: Variabler Swirl Flame (закрученный факел для короткой камеры сгорания_)

Размеры газовых горелок Weishaupt WKG 80/6-A

wkg80 6a_1.png

Полезная информация