На главнуюКонтактная информацияПоискКарта сайта

Личный кабинет:

  •      Режим работы:
  •      Пн-Пт 9.00 – 18.00.
  •      Выходные: Сб-Вс, праздничные дни.
Фирменный интернет-магазин buderus-minsk.by делает оборудование Buderus еще доступнее для Вас!

Горелка жидкотопливная Weishaupt WL30Z-C

  • Артикул: 24131321
  • Производитель: Weishaupt
  • Страна происхождения: Германия

- мощность 72-330 кВт;
- двухступенчатая
- топливо: дизельное EL

  • цена по запросу

Расшифровка обозначений

WL30Z-C (стандартное исполнение)

W  Типоряд: компактные горелки
L   Топливо: дизельное EL
30  Типоразмер
Z   Вид регулирования: двухступенчатое
С   Тип конструкции


Рабочие поля

WL30Z-C.png

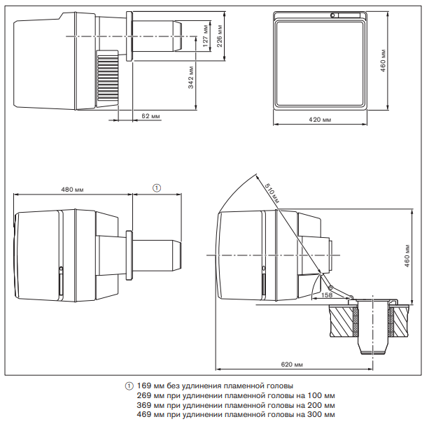
Габаритные размеры жидкотопливных горелок  Weishaupt WL30Z-C

Размеры WL30Z-C.png

Полезная информация: